Dodaj produkty podając kody
Przedstawione na niniejszej stronie internetowej informacje nie stanowią oferty handlowej w rozumieniu art.66 par.1 Kodeksu Cywilnego.
Obowiązujące normy i zastosowania:
Złączki gwintowane z żeliwa ciągliwego firmy Gebo zgodne są z normą PN-EN 10242, wzór konstrukcyjny „A”, określający typ zastosowanego materiału oraz rodzaje gwintów. Złączki Gebo Fittings spełniają wymagania powyższej normy i przeznaczone są do zastosowania w instalacjach: cieczy, powietrza, wody, palnych gazów, węglowodorów i innych substancji z zachowaniem warunków granicznych ciśnienia i temperatury wyszczególnionych w poniższej tabeli.
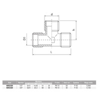
Dane techniczne:

1) Standardowe zastosowania:
Maksymalne ciśnienie robocze w minimalnej temperaturze: –20 °C, 25 bar Maksymalne ciśnienie robocze w zakresie temperatur od –20 ºC do 120 ºC: 25 bar Maksymalne ciśnienie robocze w zakresie temperatur od 120 ºC do 300 ºC: 20–25 bar











